Trilocale in vendita

Capriolo, Via roma
€ 169.000
3 locali 3 locali
70 Mq 70 Mq
1 bagno 1 bagno

Trilocale in vendita

Capriolo, Via roma

Descrizione annuncio

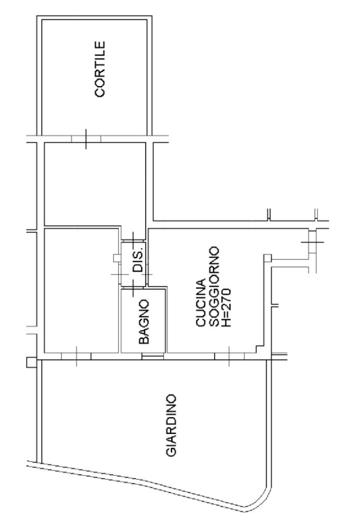
CAPRIOLO:Situato in un contesto residenziale tranquillo e ben servito, proponiamo un elegante trilocale al piano terra con un ampio giardino privato e terrazzo, ideale per chi desidera uno spazio verde riservato e vivibile tutto l'anno. L'immobile gode di un'ottima esposizione solare, garantendo ambienti luminosi e confortevoli.

L'ingresso si apre su un luminoso soggiorno con angolo cottura, progettato per ottimizzare gli spazi senza rinunciare a funzionalità e comfort. Le ampie vetrate favoriscono un'armoniosa continuità tra interno ed esterno, permettendo un accesso diretto al giardino.

La zona notte si compone di due camere da letto, perfette per una famiglia o per chi necessita di spazi generosi. Il bagno principale, finestrato, è dotato di doccia.

L'immobile è caratterizzato da un elevato standard costruttivo, con cappotto termico esterno, che garantisce un'eccellente efficienza energetica e un isolamento ottimale, sia termico che acustico. Le finiture comprendono serramenti in legno con doppio vetro a vasistas e ante in legno, coniugando estetica raffinata e prestazioni isolanti di alto livello.

L'abitazione è termoautonoma, dotata di riscaldamento a pavimento e predisposizione per l'aria condizionata, assicurando il massimo comfort abitativo in ogni stagione.

Disponibilità acquisto box singolo o doppio, in base alle proprie esigenze.

Un'opportunità unica per chi cerca spazi ben distribuiti, luminosità e un giardino privato, in un contesto moderno, efficiente e curato nei dettagli.

Mostra tutto

Nelle vicinanze

Trasporto pubblico Trasporto pubblico
Capriolo
Capriolo
430 m
Paratico-Sarnico
Paratico-Sarnico
2,9 Km
Ricariche auto elettriche Ricariche auto elettriche
EnelX EVA+ Conad Capriolo
380 m
Evway Paratico
2,8 Km
Scuole Scuole
Scuola Secondaria di Primo Grado
570 m
Scuola Primaria
640 m
Accademia
680 m
Scuole
2,5 Km
Scuola media di Tagliuno
2,5 Km
Farmacia Farmacia
Farmacia Dottor Fenaroli
330 m
Farmacia Comunale
530 m
Farmacia Sant'Anna
2,6 Km
Farmacia Perani
2,8 Km
Farmacia
3,0 Km
Supermercati Supermercati
LD
70 m
Conad
340 m
Dimeglio
350 m
Eurospin
1,3 Km
Italmark
1,7 Km
Negozi Negozi
Negozi
630 m
Panetteria Bellini
830 m
Abbigliamento
2,5 Km
Bar Bar
Kuda Rah Cafe
500 m
Le Bistrot
520 m
Bar Corallo
2,0 Km
Traffic
2,7 Km
Highway Café
2,7 Km
Ristoranti Ristoranti
Pizzeria Adriana
150 m
Agriturismo "da Bablì"
760 m
Pizzeria Osteria del Bagio
960 m
Ristoranti
1,5 Km
La Canva
2,1 Km
Mostra tutto

Caratteristiche

Rif.:
61078935
Piano:
Terra con giardino di 3 con ascensore
Totale piani:
3
Terrazzi:
1
Camere da letto:
2
Arredamento:
Assente
Mostra tutto
Prezzo Prezzo
€ 169.000
Rata mutuo Rata mutuo
€ 779 / mese
Spese annue Spese annue
€ 700
Proponi il tuo prezzoProponi il tuo prezzo
Immobile valutato con T·Valuta

Classe Energetica

E
E
E
E
E
E
E
E
E
EP globale non rinnovabile:
139.64 kW h/m² anno
EP globale rinnovabile:
139.64 kW h/m² anno
EP invernale del fabbricato:
EP estiva del fabbricato:
Anno di costruzione:
2009
Riscaldamento:
Autonomo
Tipo impianto:
A pavimento
Tipo alimentazione:
Metano

Ti interessa visionare l'immobile?

Fissa un appuntamento  Fissa un appuntamento

Richiedi informazioni

* Questi campi sono obbligatori

Calcola il tuo mutuo

Semplice e senza impegno
Anticipo

( % )
Mutuo

( % )

pochi semplici passi

inserisci i tuoi dati
Questionario completato
Grazie per aver richiesto un appuntamento senza impegno con un nostro Consulente del Credito e Assicurativo.

Hai inserito correttamente tutti i dati necessari e a breve riceverai una e-mail con un link da convalidare per inviare i tuoi dati.
Affiliato
Agenzia Imm.re Basso Sebino Srl
Via per Calepio, 56 25031 Capriolo (BS)

Il nostro staff


  • Mauro Fenaroli
    Affiliato

  • Jesus Massimo Bergamaschi
    Responsabile

  • Kinza Khatoon
    Collaboratrice

  • Benedetta Salogni
    Collaboratrice

  • Aurora Testa
    Coordinatrice
Via per Calepio, 56 25031 Capriolo (BS)
Zona: Franciacorta-Capriolo-Paratico
Mostra su mappa
Orari: Lun-Ven 9.00-12.30 / 14.30-20.00 Sabato 9.00-12.30 / 14.30-18.00 Domenica CHIUSO
Affiliato
Agenzia Imm.re Basso Sebino Srl
Via per Calepio, 56 25031 Capriolo (BS)

2025 Tecnocasa Franchising S.p.A. - P. IVA 08365160152 - Via Monte Bianco 60/A 20089 Rozzano (MI). Ogni agenzia ha un proprio titolare ed è autonoma. Privacy policy | Policy utilizzo | Cookie policy