Porzione di bifamiliare in vendita

Capriolo, Via per Calepio
€ 139.000
4 locali 4 locali
223 Mq 223 Mq
2 bagni 2 bagni

Porzione di bifamiliare in vendita

Capriolo, Via per Calepio

Descrizione annuncio

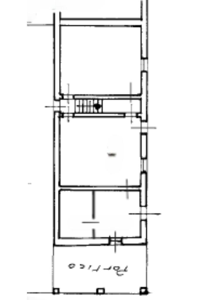
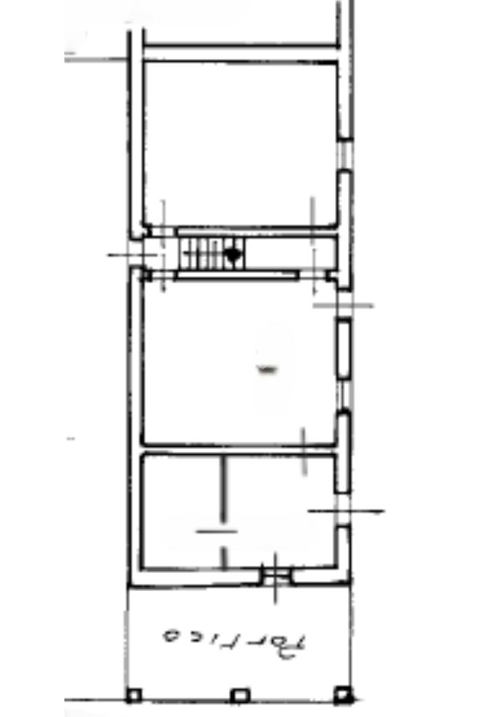
CAPRIOLO: Proponiamo in vendita una bifamiliare caratterizzata da ambienti generosi, funzionali e ben distribuiti. L’accesso alla proprietà avviene tramite ingresso condiviso pedonale e carraio, che conduce a un vialetto. Da qui si raggiungono l’abitazione e tutte le aree esterne, completamente private.

Al piano terra si trova un ampio e luminoso soggiorno. Un piccolo disimpegno conduce alla scala per il piano superiore e alla porta che dà accesso al patio esterno.

La cucina abitabile, dotata di camino, è un ambiente caldo e accogliente. Sempre al piano terra sono presenti anche una stanza aggiuntiva, e un bagno comodo e funzionale.

Al primo piano si sviluppa la zona notte, composta da tre stanze e un bagno finestrato.

Salendo ancora, al secondo piano si trova un ampio sottotetto.

Gli spazi esterni rappresentano uno dei punti di forza della proprietà: un giardino privato, anche adatto alla realizzazione di un orto; Un fabbricato accessorio, attualmente suddiviso in una taverna e un box auto, oltre a una lavanderia indipendente. L’ampia area esterna permette inoltre di installare una tettoia rimovibile o realizzare un gazebo, aumentando la vivibilità degli spazi all’aperto.

Una soluzione ideale per chi cerca privacy, comodità e versatilità, con ambienti ampi e ben organizzati dentro e fuori casa.

Mostra tutto

Nelle vicinanze

Trasporto pubblico Trasporto pubblico
Capriolo
Capriolo
890 m
Ricariche auto elettriche Ricariche auto elettriche
EnelX EVA+ Conad Capriolo
1,0 Km
Eurospin Castelli Calepio
2,4 Km
Scuole Scuole
Scuola Secondaria di Primo Grado
1,1 Km
Scuola Primaria
1,1 Km
Accademia
1,4 Km
Scuole
1,5 Km
Scuola materna parrocchiale Tagliuno
1,5 Km
Farmacia Farmacia
Farmacia Comunale
940 m
Farmacia Dottor Fenaroli
1,3 Km
Farmacia
2,1 Km
Farmacia Sant'Anna
2,2 Km
Supermercati Supermercati
Dimeglio
950 m
Conad
1,1 Km
LD
1,2 Km
Eurospin
1,9 Km
Supermercati
2,1 Km
Negozi Negozi
Negozi
1,3 Km
Panetteria Bellini
1,5 Km
Abbigliamento
2,9 Km
Bar Bar
Le Bistrot
850 m
Kuda Rah Cafe
930 m
Bar Corallo
1,4 Km
Bar Isolabella
2,9 Km
Ristoranti Ristoranti
La Canva
940 m
Pizzeria Adriana
1,1 Km
Ristoranti
1,4 Km
Pizzeria Osteria del Bagio
1,5 Km
Il ristoro
1,8 Km
Mostra tutto

Caratteristiche

Rif.:
61143293
Piano:
1 di 1 (Piano su più livelli)
Box:
1
Posti auto:
1
Camere da letto:
3
Arredamento:
Assente
Mostra tutto
Prezzo Prezzo
€ 139.000
Rata mutuo Rata mutuo
€ 656 / mese
Proponi il tuo prezzoProponi il tuo prezzo

Classe Energetica

Questo immobile è esente da classe energetica
Anno di costruzione:
1967
Riscaldamento:
Autonomo
Tipo impianto:
A radiatori
Tipo alimentazione:
Metano

Ti interessa visionare l'immobile?

Fissa un appuntamento  Fissa un appuntamento

Richiedi informazioni

Clicca su Leggi per aprire l'informativa
* Questi campi sono obbligatori

Calcola il tuo mutuo

Semplice e senza impegno
Anticipo

( % )
Mutuo

( % )

pochi semplici passi

inserisci i tuoi dati
Questionario completato
Grazie per aver richiesto un appuntamento senza impegno con un nostro Consulente del Credito e Assicurativo.

Hai inserito correttamente tutti i dati necessari e a breve riceverai una e-mail con un link da convalidare per inviare i tuoi dati.
Affiliato
Agenzia Imm.re Basso Sebino Srl
Via per Calepio, 56 25031 Capriolo (BS)

Il nostro staff


  • Mauro Fenaroli
    Affiliato

  • Jesus Massimo Bergamaschi
    Responsabile

  • Kinza Khatoon
    Collaboratrice

  • Benedetta Salogni
    Collaboratrice

  • Aurora Testa
    Coordinatrice
Via per Calepio, 56 25031 Capriolo (BS)
Zona: Franciacorta-Capriolo-Paratico
Mostra su mappa
Orari: Lun-Ven 9.00-12.30 / 14.30-20.00 Sabato 9.00-12.30 / 14.30-18.00 Domenica CHIUSO
Affiliato
Agenzia Imm.re Basso Sebino Srl
Via per Calepio, 56 25031 Capriolo (BS)

2025 Tecnocasa Franchising S.p.A. - P. IVA 08365160152 - Via Monte Bianco 60/A 20089 Rozzano (MI). Ogni agenzia ha un proprio titolare ed è autonoma. Privacy policy | Policy utilizzo | Cookie policy