Ter. residenziale in vendita

Paratico, Via Nelson Mandela
Informazioni in agenzia
2675 Mq 2675 Mq

Ter. residenziale in vendita

Paratico, Via Nelson Mandela

Descrizione annuncio

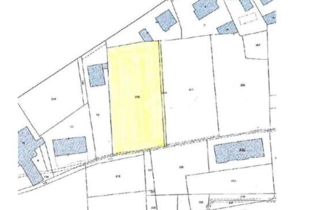
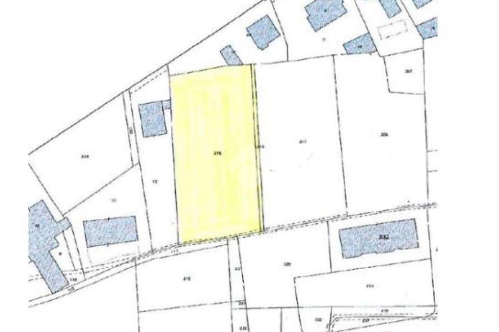
PARATICO: In nuova zona residenziale del paese, composta da soluzioni indipendenti di pregio e di grande immagine, a meno di 500 m dalla passeggiata pedonale del lungolago e dai principali servizi.

Lotto di terreno edificabile di circa 2.675 mq con indice di edificabilità pari a 0,983 mc/mq. Facile accesso da strada comunale, adiacente ad ampio parcheggio pubblico.

Ideale per la realizzazione di un intervento residenziale sia con appartamenti sia con villette.

Oneri di urbanizzazione primaria già compensati. Possibilità di permuta.

Mostra tutto

Nelle vicinanze

Trasporto pubblico Trasporto pubblico
Paratico-Sarnico
Paratico-Sarnico
1,1 Km
Capriolo
Capriolo
2,5 Km
Trasporto pubblico
2,8 Km
Sarnico
1,0 Km
Ricariche auto elettriche Ricariche auto elettriche
Evway Paratico
280 m
EnelX EVA+ Conad Capriolo
2,4 Km
Scuole Scuole
Scuola Secondaria di Primo Grado Giacomo Matteotti
470 m
Scuola Primaria Suor Celina Manfredi
520 m
Scuole
1,7 Km
Accademia
1,9 Km
Farmacia Farmacia
Farmacia Perani
860 m
Farmacia Sant'Anna
2,5 Km
Farmacia Dottor Fenaroli
2,8 Km
Ospedali Ospedali
Ospedale di Sarnico
1,5 Km
Supermercati Supermercati
Lidl
350 m
Supermercati
670 m
Despar
850 m
MD
940 m
Simply
1,9 Km
Bar Bar
Bar
810 m
ImBARcadero
1,0 Km
Araba Fenice
1,1 Km
Bar La Dama nera
1,1 Km
Swing
1,1 Km
Ristoranti Ristoranti
Kōen
700 m
Belleville Rendezvous
890 m
Approdo
1,0 Km
Al Tram
1,1 Km
Il Chiostro
1,1 Km
Mostra tutto

Caratteristiche

Rif.:
61189614
Condizionamento:
Assente
Riscaldamento:
Assente
Libero:
Mostra tutto
Prezzo Prezzo
Informazioni in agenzia
Proponi il tuo prezzoProponi il tuo prezzo

Altre caratteristiche

Classe Energetica

Questo immobile è esente da classe energetica
Riscaldamento:
Assente

Ti interessa visionare l'immobile?

Fissa un appuntamento  Fissa un appuntamento

Richiedi informazioni

Clicca su Leggi per aprire l'informativa
* Questi campi sono obbligatori
Affiliato
Agenzia Imm.re Basso Sebino Srl
Via per Calepio, 56 25031 Capriolo (BS)

Il nostro staff


  • Mauro Fenaroli
    Affiliato

  • Jesus Massimo Bergamaschi
    Responsabile

  • Benedetta Salogni
    Collaboratrice

  • Aurora Testa
    Coordinatrice
Via per Calepio, 56 25031 Capriolo (BS)
Zona: Franciacorta-Capriolo-Paratico
Mostra su mappa
Orari: Lun-Ven 9.00-12.30 / 14.30-20.00 Sabato 9.00-12.30 / 14.30-18.00 Domenica CHIUSO
Affiliato
Agenzia Imm.re Basso Sebino Srl
Via per Calepio, 56 25031 Capriolo (BS)

2026 Tecnocasa Franchising S.p.A. - P. IVA 08365160152 - Via Monte Bianco 60/A 20089 Rozzano (MI). Ogni agenzia ha un proprio titolare ed è autonoma. Privacy policy | Policy utilizzo | Cookie policy